
We also manufacture Bespoke Portable Buildings
12/10/2025
As well as having in stock, a number of open plan brand-new portable buildings in various sizes for immediate delivery, we also can manufacture bespoke buildings to your specific requirements.
These include;
· Any sized portable building from 10’ to 48’ and any size in between.
· Specific widths if your site is restricted to normal widths.
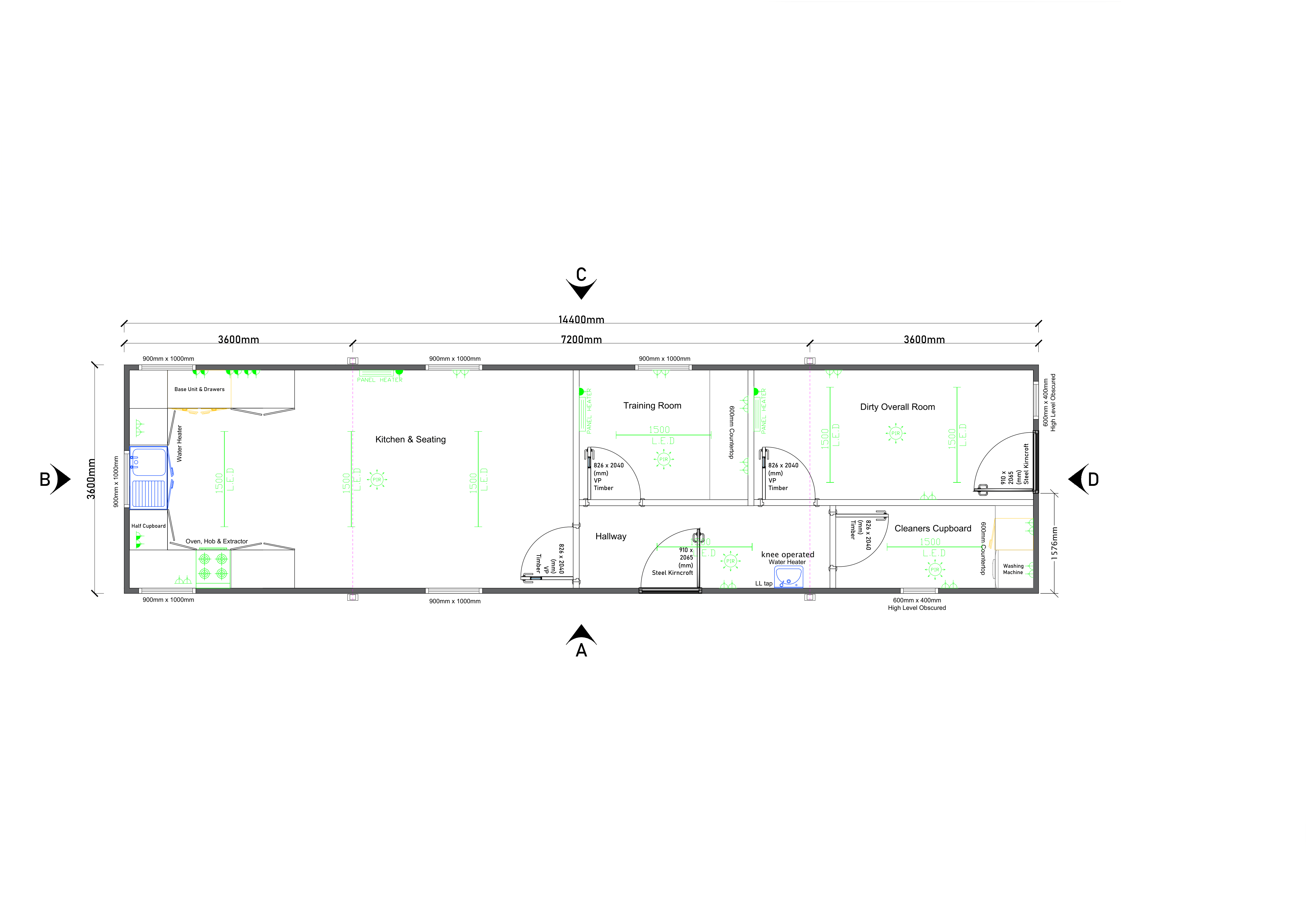
· Any floor plan layout you require.
· A range of external RAL colours in a plastic-coated steel finish.
· A choice of windows in Upvc, coloured Upvc, or powder coated aluminium.
· A choice of floor coverings and colours.
· External Timber cladding or cement board cladding.
· Double door entries and external window shutters.
· Toilets, showers, kitchens, drying rooms, offices and meeting rooms.
· Double storey portable buildings with an external steel staircase.
· IT Trunking / fire alarm systems.
· Steel anti-vandal buildings.
· Modular buildings.

We have manufactured and supplied portable buildings for use as offices, meeting rooms, drying rooms, canteens, toilet areas, and even a key storage area, a bible meeting class, a nail salon and a laboratory to name just a few.
Whatever you need, we can manufacture your bespoke portable or modular building with a quick turnaround period and at a very competitive cost.
Just drop us an email with your wish list or please call us on 01482 481802.