New Six Bay Modular Nursery Building Project Completed

News

20/11/2025

We have just completed a six-bay modular nursery building project to the very nice people at Bowburn Primary School in County Durham.

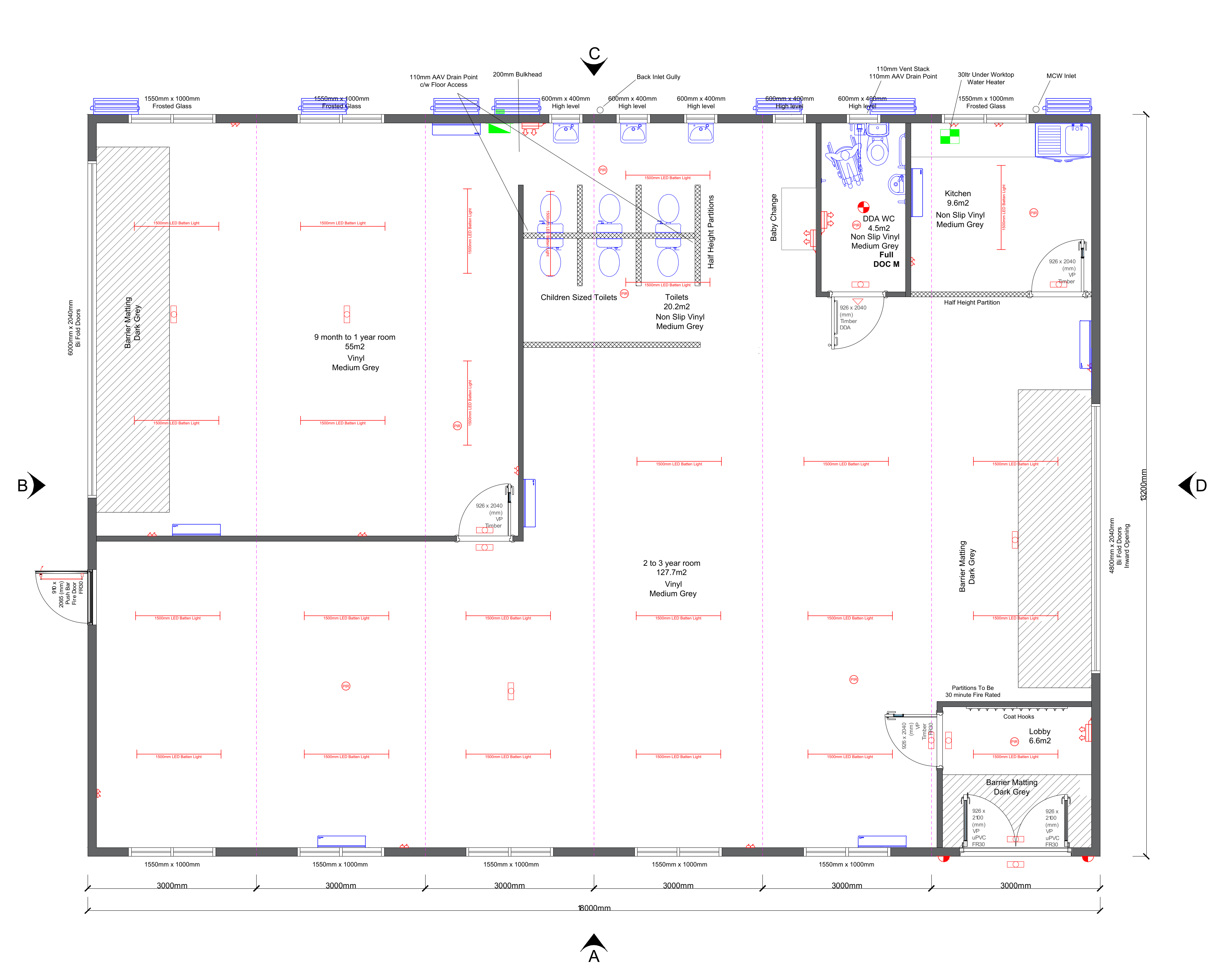
We were contacted earlier in the year by the Head Teacher who wanted a nursery building on a spare piece of land adjacent to the school. Her requirements were for a 55m2 area for 9 months to 1 year old children, a 127m2 area for 2 to 3 year olds and with both areas completed with inward opening powder coated aluminium framed bi-fold doors.

Other areas needed were a children’s toilet and baby change area with six separate toilets, a DDA compliant disabled toilet area and a kitchen area.

We suggested a 13.2m x 18m six section modular building which just fitted on their available area and was able to include all of their required areas and facilities.

In addition, they required the building to be fitted in a plastic-coated steel external finish in Anthracite and with some modules externally fitted with timber as an aesthetic contrast. All the windows and the double entrance door were “A” rated Upvc wrapped in an Anthracite colour.

The site was on a heavily sloped tarmac finished area so the building was sited on Jackpad foundations and finished with a plastic-coated steel bottom skirt.

During the quotation period we produced many drawings until a final design was approved and attended many site visits to meet with other contractors involved in other elements of the finished building.

After the school compared our finished quotation and proposals with other modular building providers, we were chosen for this contract, as representing the best value for money.

The building was safely and successfully delivered and installed in just one day, on the first day of the half term. We spent the next couple of weeks completing our works and to the complete satisfaction of the Head Teacher who said,

“Just a big thank you to Andy and his team for their hard work over the past couple of weeks.  Nothing was ever too much trouble, and they have been fantastic throughout.  The building is beautiful so thank you for all the work and effort that has gone into making this project come to life.”

Icon - Let us help you

Let us help you

Get in touch with our helpful team and we will respond rapidly

Quick quote

Navigation

Find us

New Cabin Space Ltd
Biz Hub Hull
Unit G06A. Melton Court
Gibson Lane
Melton Industrial Estate
North Ferriby
East Yorkshire
HU14 3HH

Contact us

Other links