Linked Buildings supplied in record time to Beaver Lakes Fishery

News

30/04/2026

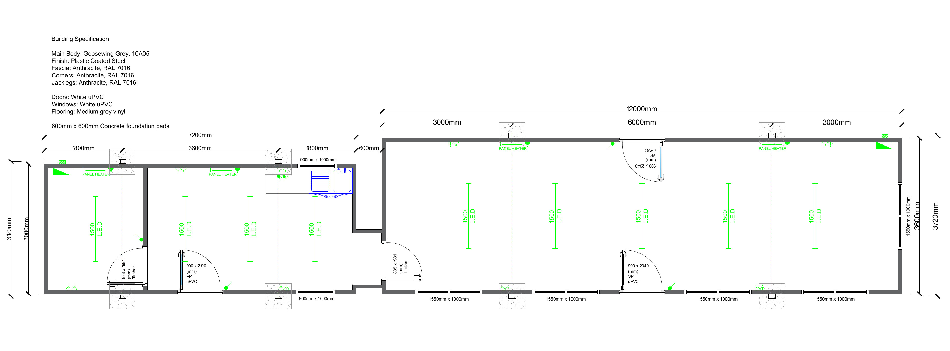
We received an enquiry from Daniel at Beaver Lakes Fisheries in Surrey who urgently wanted two new portable buildings linked end to end. We provided a drawing and costings for the supply of a 40’ x 12’ portable building and a 24’ x 10’ portable building linked with a 4’ x 2’ linkway.

The only problem was that the project had to be manufactured and delivered and installed on the 29th of April and the order was placed on the 10th of April giving us just 19 days including weekends to complete the project.

And that’s what we did, we worked weekends and even over a Bank Holiday weekend to ensure that we completed what we promised, so that Daniel could have his buildings ready for the May Bank Holiday.

We like a challenge and this indeed was, as we were already very busy manufacturing a number of buildings for the Orkney Islands and other customers as well.

Oue customer was delighted with the quality of our product, our speed in delivery and our team that installed both buildings.

If you have an enquiry then please contact us or call us on 01482 481802 to chat about your project and we will do our very best to help you.

Icon - Let us help you

Let us help you

Get in touch with our helpful team and we will respond rapidly

Quick quote

Navigation

Find us

New Cabin Space Ltd
Biz Hub Hull
Unit G06A. Melton Court
Gibson Lane
Melton Industrial Estate
North Ferriby
East Yorkshire
HU14 3HH

Contact us

Other links